top of page
We do produce Land Registry compliant Lease or Title plans. A measured survey of your property will be required. However a measured survey will not be necessary if you have scaled floor plans in DWG, jpeg, pdf formats or hard copy.

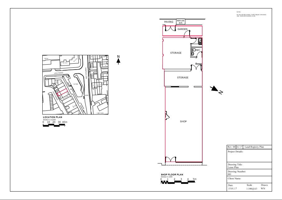
Lease/ Title Plans

What We Do
We can produce site specific architectural design solutions through to detailed construction drawings
We do produce Land Registry compliant Lease or Title plans. A measured survey of your property will be required.
We do produce Land Registry compliant Lease or Title plans. A measured survey of your property will be required.
bottom of page

